Author: Pauline Pan Publish Time: 2025-10-16 Origin: Site
At Chowchow Play, we don't just sell equipment – we help bring educational dreams to life. One of our most exciting projects to date is a 12,000㎡ international kindergarten in Africa, created in close collaboration with a local education group. Today, this kindergarten stands as a new benchmark for early childhood education in the region, combining elite international curricula with a natural, child-centered environment.
From an empty plot of land to a fully operational campus, this project perfectly demonstrates our “from zero to kindergarten” turnkey process. Let us walk you through how we did it.

Project name: African International Kindergarten
Location: Africa
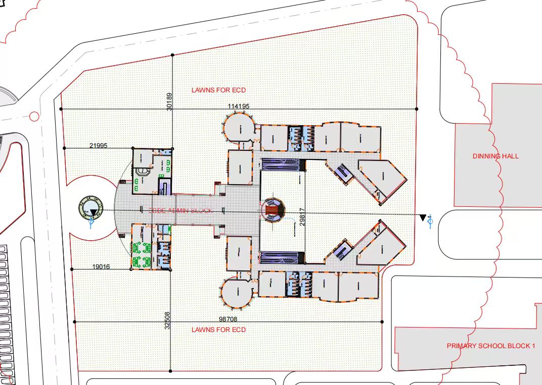
Total area: 12,000㎡
Age group: 2–6 years
Classrooms: 40+ standard classrooms, serving up to 1,200 children
Positioning: A top-tier international kindergarten, blending Eastern and Western educational philosophies
Key features: Elite education system, natural eco-environment, smart teaching facilities, 24/7 security
This is not only the largest kindergarten in the local area – it’s also a flagship example of Chowchow Play’s ability to handle large‑scale international projects from concept to operation.
When you start a 12,000㎡ kindergarten from scratch, thorough preparation is everything. Here's what we did together with the client:
Full CAD drawings – accurate floor plans, structural layouts, and underground utility maps to understand site boundaries and constraints.
Topographic survey – detailed mapping of the outdoor area to guide drainage and the placement of play facilities.
Geotechnical report – soil testing to ensure safe installation of large equipment, especially important given local African ground conditions.

Drone aerial shots to capture the entire 12,000㎡ site and surrounding environment.
Ground‑level photos with key features and existing vegetation marked – this helped us plan an eco‑friendly design.
Traffic flow analysis around the site to optimize the main entrance and parent drop‑off routes.


We agreed on a dual core philosophy: elite education + natural growth.
Mapped out indoor zones: international classrooms, science lab, art center, library, heated swimming pool.
Planned the outdoor spaces: nature discovery area, physical challenge zone, ecological planting area, sand and water play zone – all centered around a large, well‑designed outdoor playground.
Small class sizes – maximum 25 children per class, ensuring individual attention.
Bilingual immersion – certified local and international teachers create a native‑like language environment.
Multiple intelligences curriculum – blending core academics with art, sports, science exploration, and more.
Forest‑style outdoor environment – preserving native trees and planting shade‑giving local species.
Sustainable water system – rainwater harvesting for irrigation and the sand‑water play area.
Micro‑ecosystem – letting children observe life cycles and develop environmental awareness.
No sharp edges – all furniture and play equipment are rounded; guardrails ≥70cm, meeting international safety standards.
Slip‑resistant, durable surfaces – EPDM safety mats outdoors, non‑slip tiles indoors.
Smart security – 24/7 video surveillance, electronic fencing, and emergency call systems.
In a 12,000㎡ space, traffic flow is the backbone of safety and efficiency.
Main entrance & parent waiting area – street‑facing, with a smart pickup system, completely separated from service vehicles.
Fire lane network – ring road with width ≥1.4m and height ≥2.2m, covering the entire site.
Dedicated logistics routes – separate paths for food delivery and waste removal, away from teaching areas.
Separated pedestrian and vehicle routes – clear zoning to keep children safe.
This is where the outdoor playground truly shines. We designed four main zones:
Nature exploration area – log climbing structures, treehouses, balance beams to encourage and observation.
Physical challenge zone – large slides, swings, climbing nets to build strength and coordination.
Sand and water play zone – eco‑friendly sandpit with a recirculating water system for sensory play.
Ecological planting area – class‑assigned garden beds where children learn to grow plants.
Every part of the outdoor playground uses UV‑resistant, non‑toxic materials suitable for the African climate.


Smart classrooms – interactive screens and multimedia equipment for immersive lessons.
Specialized rooms – science lab, art center, library, heated pool.
Living areas – ergonomic, rounded‑edge furniture made from eco‑friendly materials.



After finalizing the product plan, we deepened the environment design:
Wall art – blending African cultural elements with international visual appeal.
Natural lighting – large floor‑to‑ceiling windows and skylights to maximize daylight.
Color psychology – age‑appropriate color schemes for different functional zones.
Acoustic treatment – sound‑absorbing materials to create quiet, focused learning spaces.
For a project of this scale, we provided a full support system:
Basic support – detailed installation diagrams and manuals for the local team.
Real‑time support – remote video/phone guidance from our technical experts.
On‑site support – senior installation engineers dispatched to Africa to ensure every piece of the outdoor playground and indoor equipment was perfectly installed.

| Zone Area | Core | Function | Educational Value |
| Nature Discovery Forest | 2,500㎡ | Log play structures, treehouses, balance trails | Observation, risk‑taking, balance |
| Physical Development Zone | 2,000㎡ | Large combo slides, climbing nets, swings | Coordination, endurance |
| Sand & Water World | 1,500㎡ | Eco‑sandpit, recirculating water system | Sensory development, science curiosity |
| Ecological Planting Garden | 1,000㎡ | Class garden plots, pond, insect hotel | Responsibility, environmental care |
| Open Lawn & Music Area | 1,000㎡ | Free play turf, outdoor musical instruments | Social interaction, creativity |
The outdoor playground is the heart of the campus – every zone is designed to be safe, engaging, and developmentally appropriate.
Teaching core – 40+ standard classrooms with interactive screens and multimedia.
Specialized rooms – science lab, art center, library, heated swimming pool.
Living services – nutrition kitchen, medical room, nap area.
Parent zone – reception hall, parent classroom, coffee lounge to build home‑school partnership.





At Chowchow Play, we believe every kindergarten should be a paradise for children. Whether you’re planning a small community nursery or a large international campus like this 12,000㎡ African project, we offer a complete, customized solution – from the first sketch to the final installation and beyond.
Ready to build your dream kindergarten? Let’s talk.
Contact Chowchow Play today for a free consultation and a custom quote for your outdoor playground and indoor learning environment.
